Villa singola in vendita

Negrar Di Valpolicella, Via Casa Bertolini - Montecchio
€ 495.000
10 locali 10 locali
494 Mq 494 Mq
2 bagni 2 bagni

Villa singola in vendita

Negrar Di Valpolicella, Via Casa Bertolini - Montecchio

Descrizione annuncio

Negrar di Valpolicella- Montecchio

Circondata dal verde delle colline di Montecchio, a 7 km dal centro paese di Negrar, proponiamo in vendita soluzione indipendente libera su quattro lati con 5000mq di giardino privato.

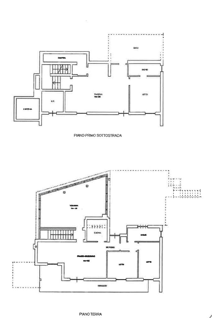
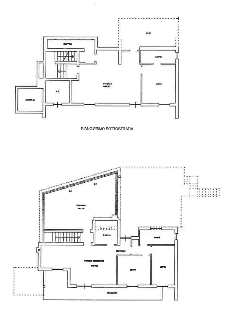
L’abitazione si sviluppa su due livelli:

al piano primo troviamo un luminoso soggiorno con angolo cottura e accesso alla veranda , due camere da letto di cui una matrimoniale e una doppia; a concludere il piano vi è un ampio bagno finestrato.

Tutti gli ambienti godono di accesso diretto al balcone dal quale si può ammirare una gradevole vista panoramica su Verona e sul lago di Garda.

Tramite una scalinata interna accediamo al piano terra dove troviamo un'ampia taverna con camino, una terza camera da letto con bagno finestrato, una cantina ed un locale tecnico.

Completa la proprietà un ampio garage di facile accesso e vari posti auto esterni.

Impianti e finiture;

La soluzione immobiliare necessita di interventi di ristrutturazione, gli impianti e le finiture risalgono all'epoca di ristrutturazione. il riscaldamente è di tipo autonomo.

Mostra tutto

Nelle vicinanze

Trasporto pubblico Trasporto pubblico
Trasporto pubblico
730 m
Mobilificio Mion
Mobilificio Mion
3,0 Km
Supermercati Supermercati
Migross
2,9 Km
Bar Bar
Baita Alpini Alcenago
2,4 Km
Ristoranti Ristoranti
Trattoria Righetti
710 m
Ostaria Trattoria Castel
2,4 Km
ITaste
2,6 Km
Da Gigi
2,9 Km
Mostra tutto

Caratteristiche

Rif.:
61134325
Piano:
Su più livelli di 2
Totale piani:
2
Box:
1
Posti auto:
4
Balconi:
1
Mostra tutto
Prezzo Prezzo
€ 495.000
Rata mutuo Rata mutuo
€ 2.332 / mese
Spese annue Spese annue
€ 0
Proponi il tuo prezzoProponi il tuo prezzo

Classe Energetica

G
G
G
G
G
G
G
G
G
EP globale non rinnovabile:
364.20 kW h/m² anno
EP globale rinnovabile:
2.50 kW h/m² anno
EP invernale del fabbricato:
EP estiva del fabbricato:
Anno di costruzione:
1978
Riscaldamento:
Autonomo
Tipo impianto:
A radiatori
Tipo alimentazione:
Metano

Ti interessa visionare l'immobile?

Fissa un appuntamento  Fissa un appuntamento

Richiedi informazioni

Clicca su Leggi per aprire l'informativa
* Questi campi sono obbligatori

Calcola il tuo mutuo

Semplice e senza impegno
Anticipo

( % )
Mutuo

( % )

pochi semplici passi

inserisci i tuoi dati
Questionario completato
Grazie per aver richiesto un appuntamento senza impegno con un nostro Consulente del Credito e Assicurativo.

Hai inserito correttamente tutti i dati necessari e a breve riceverai una e-mail con un link da convalidare per inviare i tuoi dati.
Affiliato
Immobiliare Valpo Srl
Via Casette, 13 37024 Negrar Di Valpolicella (VR)

Il nostro staff


  • Erica Ottolini
    Affiliata

  • Matteo Caldera
    Responsabile

  • Ylenia Rangheri
    Coordinatrice
Via Casette, 13 37024 Negrar Di Valpolicella (VR)
Zona: Valpolicella-Arbizzano-Pedemonte-Negrar
Mostra su mappa
Affiliato
Immobiliare Valpo Srl
Via Casette, 13 37024 Negrar Di Valpolicella (VR)

2026 Tecnocasa Franchising S.p.A. - P. IVA 08365160152 - Via Monte Bianco 60/A 20089 Rozzano (MI). Ogni agenzia ha un proprio titolare ed è autonoma. Privacy policy | Policy utilizzo | Cookie policy